
Inwestycja
Inwestycja obejmuje budowę zespołu trzech budynków jednorodzinnych dwulokalowych z garażami w bryle budynku wraz z niezbędną infrastrukturą techniczną na gruncie. Łącznie inwestycja obejmuje 6 lokali mieszkalnych, każdy z własnym garażem oraz ogrodem.
Budynki cechują się prostą, elegancką formą, nawiązującą do aktualnych trendów w nowoczesnej architekturze mieszkaniowej. Zaprojektowane zostały indywidualnie z myślą o komforcie przyszłych mieszkańców oraz efektywnym wykorzystaniu powierzchni.
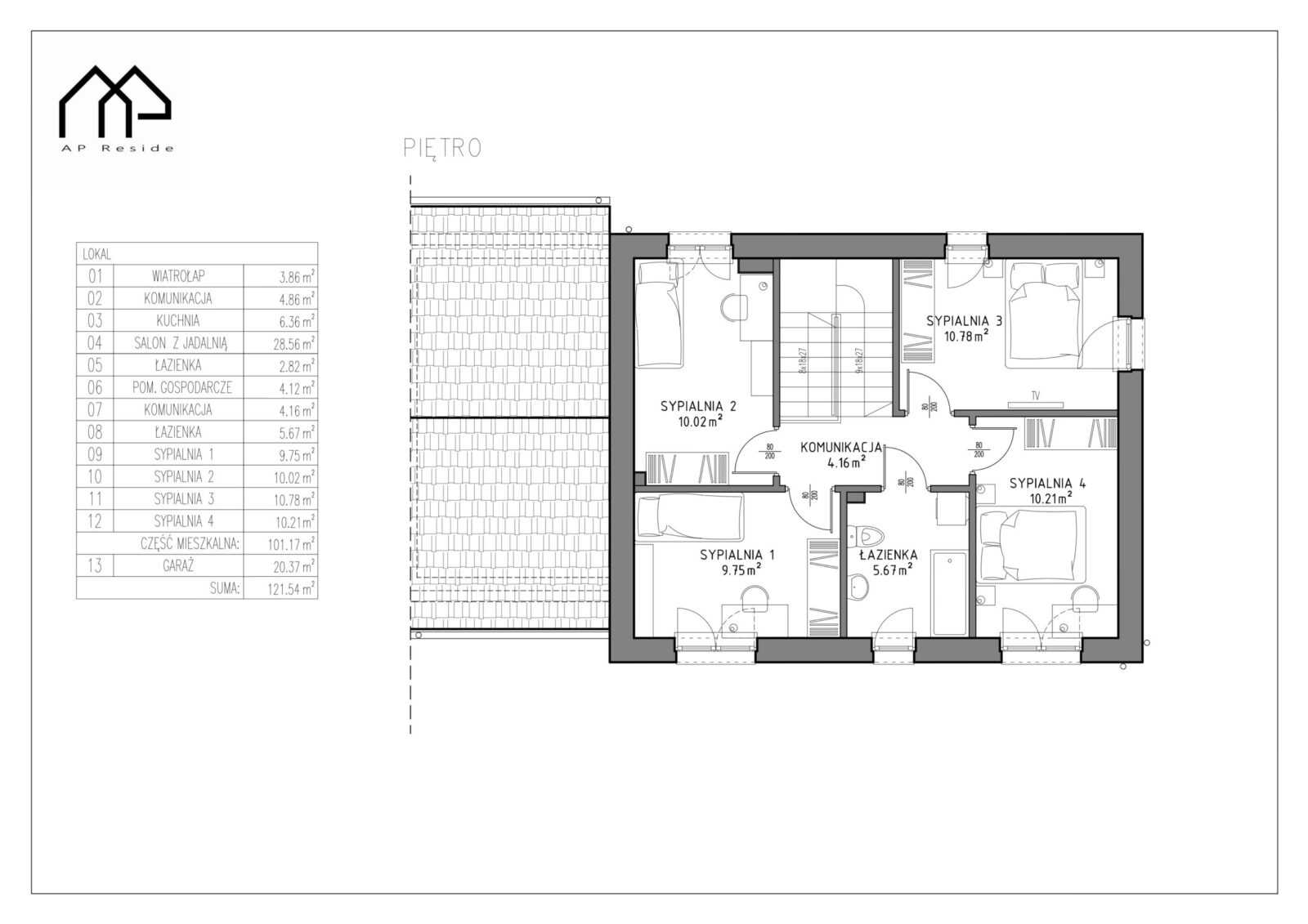
Lokale realizowane w wysokim standardzie, z zastosowaniem nowoczesnych technologii budowlanych. Każdy z lokali ma powierzchnię użytkową ok. 101,17 m² oraz garaż o powierzchni 20,37 m², co daje łączną powierzchnię ok. 121,54 m².
Każdy lokal posiada wydzielony ogród o powierzchni od około 490 m² do 570 m², co istotnie podnosi komfort i wartość użytkową nieruchomości.
Z salonów dzięki dużym przeszkleniom zapewniono wyjście bezpośrednio do ogrodów, co sprzyja relaksowi i integracji z zielenią. To idealna przestrzeń dla rodzin z dziećmi, miłośników ogrodnictwa lub osób ceniących aktywny wypoczynek na świeżym powietrzu. Dla każdego lokalu przewidziano także utwardzone miejsce postojowe przed budynkiem. Inwestycja spełnia nowoczesne standardy energooszczędności i komfortu użytkowania, co przekłada się na niskie koszty eksploatacyjne i atrakcyjność lokali.
Lokalizacja
Osiedle Barwinek zlokalizowane jest w miejscowości Ćmiłów, w gminie Głusk – na południe od Lublina. Kameralne osiedle sześciu domków o powierzchni 121,54 m² z garażem. Lokalizacja łączy w sobie spokojny, kameralny charakter terenów podmiejskich z bliskością pełnej infrastruktury miejskiej, co stanowi jej niewątpliwy atut.
Dojazd do inwestycji odbywa się poprzez nowo wybudowaną drogę gminną – ulicę Wachowskiego – wyposażoną w chodnik oraz oświetlenie, co znacząco podnosi komfort i bezpieczeństwo przyszłych mieszkańców. Zjazd z tej ulicy prowadzi na drogę wewnętrzną ul. Barwinkową, stanowiącą bezpośredni dostęp do Osiedla. Inwestycja znajduje się zaledwie ok. 2 km od granic administracyjnych Lublina, a dojazd do centrum miasta zajmuje około 20 minut. To sprawia, że Osiedle Barwinek stanowi doskonałą propozycję dla rodzin i osób pracujących w Lublinie, które poszukują spokojnego miejsca do życia w sąsiedztwie miasta z dala od miejskiego zgiełku.
Najważniejsze atuty nieruchomości

Rzuty


















